из плоскости в пространство

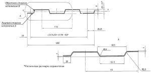
С8-1150

Описание
Параметры
Назначение

Заказывая изделия из оцинкованной стали и стали с полимерным покрытием, важно, чтобы производитель соблюдал правила хранения металла у себя на складе. Убедитесь, что рулоны до производства хранились в крытом помещении и не были подвержены перепадам температуры и влажности. Нарушение правил хранения рулонной стали вызовет преждевременную коррозию ваших изделий.

Профлист С8-1150 – это универсальный профилированный лист, который может одинаково успешно применяться для фасадной облицовки, для монтажа заборов и оград, в быстровозводимых конструкциях, таких как  гаражи, павильоны различного назначения, ангары и многие другие. Это один из самых экономичных видов профнастила, при этом он сохраняет все  качественные характеристики данного вида продукции. Профилированный лист этого типа идеально подойдет тем, кто ищет простой в применении, эстетичный, современный, прочный и качественный строительный материал, который способен послужить долгие годы.

Показать больше

монтаж профнастила   

 

Обозначение профиля Толщина стали t, мм Площадь сечения см2 Масса 1м длины, кг Справочные величины 1м ширины Масса 1м2, кг Ширина заготовки, мм
при сжатых узких полках при сжатых широких полках
Момент инерции Ix, см4 Момент сопротивления, см3 Момент инерции Ix, см4 Момент сопротивления, см3
Wx1 Wx2 Wx1 Wx2
С8-1150-0,4 0,4 5,0 4,4 0,4 3,8 1250
С8-1150-0,5 0,5 6,3 5,4 0,6 4,7
С8-1150-0,6 0,6 7,5 6,4 0,7 5,6
С8-1150-0,7 0,7 8,8 7,4 0,9 6,4
С8-1150-0,8 0,8 10,0 8,4 1,0 7,3

Технические особенности С8-1150

Этот материал, вопреки устоявшемуся мнению, позволяет существенно экономить, не  теряя при этом в качестве. Для него характерны следующие свойства:

  • Лёгкость. Относительно небольшой вес тонкого стального полотна обеспечивает  удобство использования этого материала.
  • Прочность, которая достигается благодаря высокому качеству сырья и специальным методам обработки. В качестве основы используется холоднопрокатная сталь.
  • Высокая жёсткость. Изгиб ребра обеспечивает достаточную жесткость конструкции.
  • Эстетичный внешний вид. Полимерное покрытие  придает  листам  декоративный внешний вид и значительно расширяет возможности его использования.
  • Широкий выбор цветовых решений. Наиболее популярными оттенками профилированного листа являются классические цвета: винно-красный, ярко синий, мшисто зелёный, графитовый  и шоколадный. Однако  мы  можем предложить и другие варианты интересных цветовых решений, которые выгодно  выделят ваше строение на общем фоне.
  • Антикоррозийность. Материал стоек к любым видам  повреждений от внешних воздействий, будь то осадки, температурные перепады, или химреактивы, образующиеся в промышленных зонах или городской среде.
  • Стойкость к ультрафиолетовым лучам. Цветное покрытие на солнце не трескается и не выгорает.

ПК «Профиль» предлагает вам профнастил С8-1150  собственного производства, который всегда есть в наличии на складской базе в Петербурге.

Калькулятор заказа

Выберите параметры

{{ displayPricePerMeter }}
{{ displayPricePerSqMeter }}
{{ displayPricePerMeter }}

{{item.variation?.name}}

{{ calculateItemPrice(item) }} ₽ Под запрос
Пог. метров: {{ calculateLinearMeters(item) }} Кв. метров: {{ calculateSquareMeters(item) }}
Добавить длинупозицию
{{ calculateTotalPrice() }} ₽
Всего пог. метров: {{ calculateTotalLinearMeters() }}
Всего кв. метров: {{ calculateTotalSquareMeters() }}
Очистить заказ